夾套固定球閥產品概述
夾套固定球閥是一種球體安裝在上下軸上的滑動軸承上,不能產生水平位移,且殼體外焊有一層金屬夾套使之與閥體的外表面形成保溫腔,并在其上設有熱源入口和出口,通過它可以對整個閥門進行不間斷地流動加熱來維持閥內的溫度,以保證所輸送的介質不會結晶而能正常通過的球閥。該閥閥桿上端連接有控制閥門開和關的驅動裝置,以達到截斷或接通管路中的介質目的。本產品采用固定球、浮動閥座結構設計,特適用于高壓大口徑工況場合。
夾套固定球閥金屬夾套下部設有帶有封閉圈和鎖緊螺栓的排污口,其與保溫腔相連通,由于高溫蒸汽在保溫腔運作的過程中會發生液化現象,隨著時間的積累會在保溫腔內沉積相應量的凝結水,從而必然會使保溫腔內高溫蒸汽的有效容積減少,保溫加熱效果隨即降低,當使用一段時間后,可通過該排污口將沉積下來的液體排出,即可保證其保溫加熱效果。該閥具有良好的保溫保冷特性,因此,本產品被廣泛應用于石油、化工、食品、制藥等領域。
夾套固定球閥部件材料
| 序號 | 部件名稱 | 材料名稱 | ||||
| 1 | 閥 體 | WCB | CF8 | CF3 | CF8M | CF3M |
| 2 | 左 閥 體 | WCB | CF8 | CF3 | CF8M | CF3M |
| 3 | 閥 座 | R-PTFE、PTFE、TEFLON、NYLON、PPL、PEEK、DEVLON、不銹鋼+硬質合金 | ||||
| 4 | 球 體 | 2Cr13 | 304 | 304L | 316 | 316L |
| 5 | 閥 桿 | 2Cr13 | 304 | 304L | 316 | 316L |
| 6 | 固 定 軸 | 2Cr13 | 304 | 304L | 316 | 316L |
| 7 | 填 料 | GRAPHITE、R-PTFE、PTFE、TEFLON、PCTFE | ||||
| 8 | 填料壓板 | WCB | CF8 | CF3 | CF8M | CF3M |
| 9 | 保溫夾套 | Q235B | 304 | 304 | 304 | 304 |
夾套固定球閥性能規范
| 公稱壓力PN(MPa) | 1.6 | 2.5 | 4.0 | 6.3 | 10.0 |
| 殼體試驗壓力(MPa) | 2.4 | 3.75 | 6.0 | 9.45 | 15.0 |
| 高壓液體密封試驗壓力(MPa) | 1.76 | 2.75 | 4.4 | 6.93 | 11.0 |
| 低壓氣體密封試驗壓力(MPa) | 0.4~0.7 | 0.4~0.7 | 0.4~0.7 | 0.4~0.7 | 0.4~0.7 |
| 設計制造 | JB/T 13458、GB/T 12237、GB/T 21385、API 608、ASME B16.34 | ||||
| 結構長度 | JB/T 13458、GB/T 12221、ASME B16.10 | ||||
| 法蘭標準 | JB/T 79、GB/T 9113、HG/T 20592、HG/T 20615、SH/T 3406、ASME B16.5等 | ||||
| 檢驗試驗 | GB/T 13927、GB/T 26480、JB/T 9092、API 598 | ||||
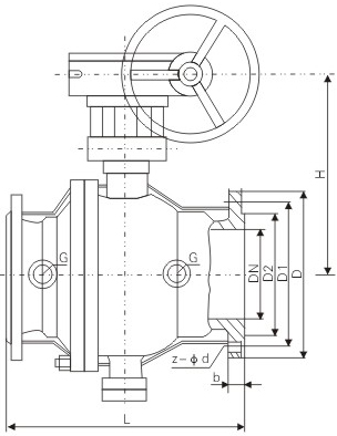
夾套固定球閥主要尺寸
| 公稱壓力 PN(MPa) | 公稱通徑 DN(mm) | 連接端規格 A×B(mm) | 結構長度 L(mm) | 公稱壓力 PN(MPa) | 公稱通徑 DN(mm) | 連接端規格 A×B(mm) | 結構長度 L(mm) |
| 1.6 | 50 | 50×80 | 216 | 1.6 | 250 | 250×300 | 533 |
| 65 | 65×100 | 241 | 300 | 300×400 | 610 | ||
| 80 | 80×125 | 283 | 350 | 350×450 | 686 | ||
| 100 | 100×150 | 305 | 400 | 400×500 | 762 | ||
| 125 | 125×200 | 356 | 450 | 450×600 | 864 | ||
| 150 | 150×200 | 394 | 500 | 500×600 | 914 | ||
| 200 | 200×250 | 457 | 600 | 600×700 | 1067 | ||
| 表中未列出的其他規格尺寸,請咨詢汗越閥門技術部! | |||||||
夾套固定球閥結構圖

如果你需訂購我廠保溫球閥產品,咨詢時煩請說明公稱壓力、公稱尺寸、閥體和內件材質、使用介質、工作溫度、端部連接方式等,本產品按密封結構形式分有軟密封和硬密封兩種。

